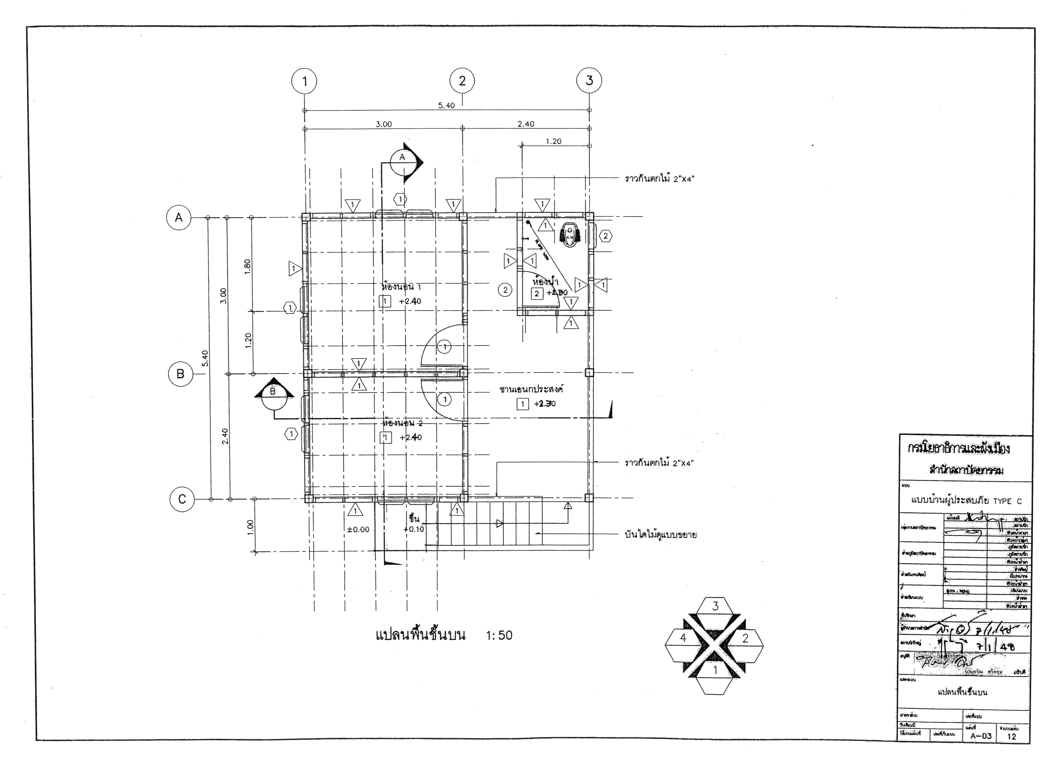
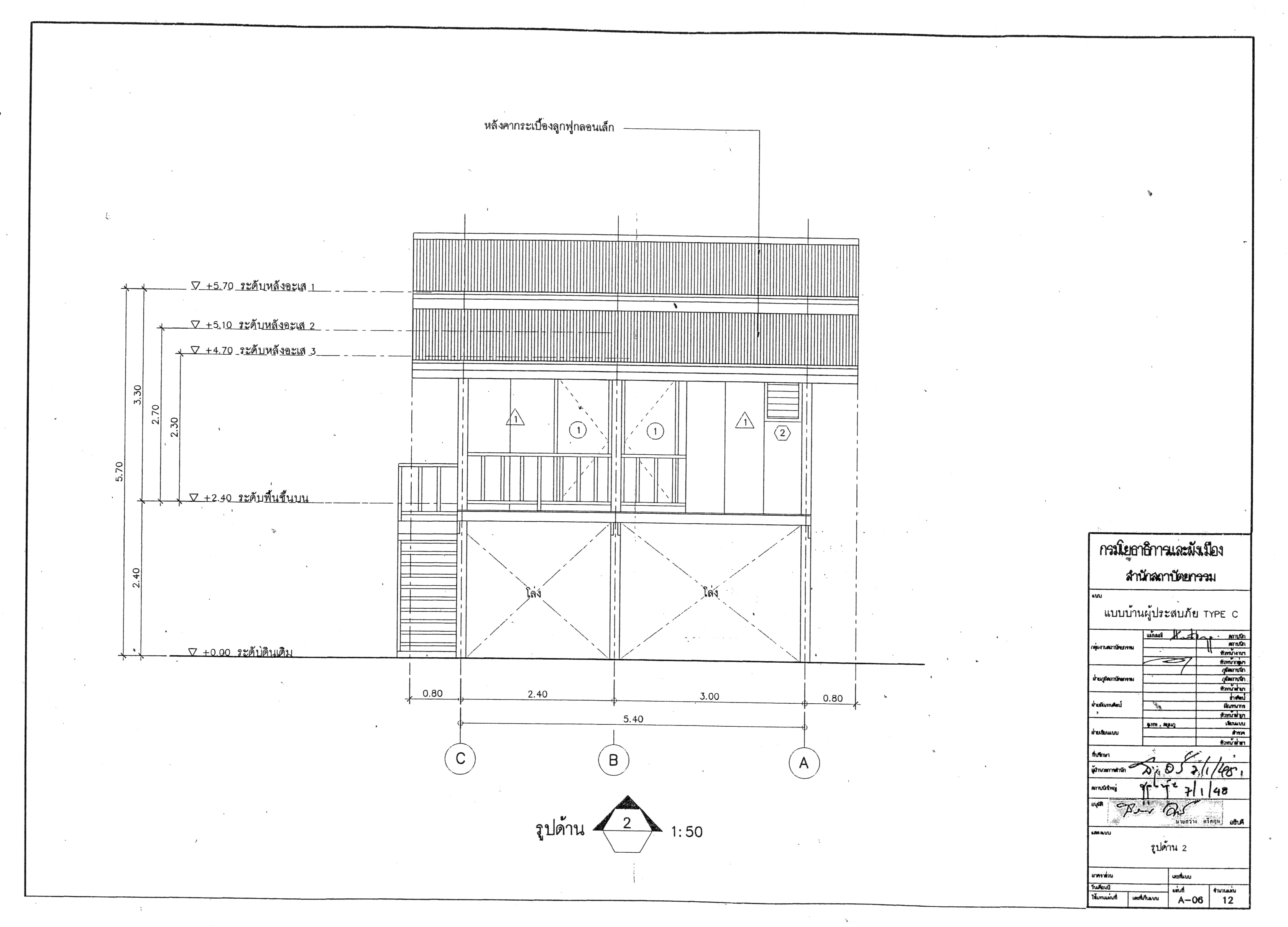
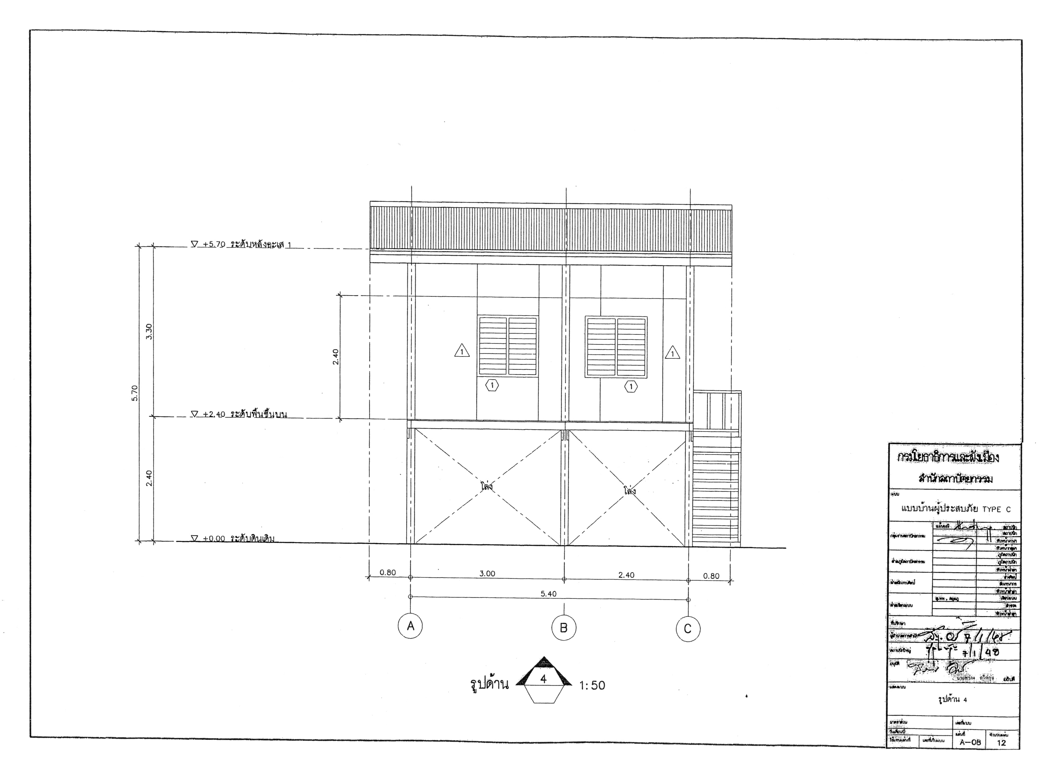
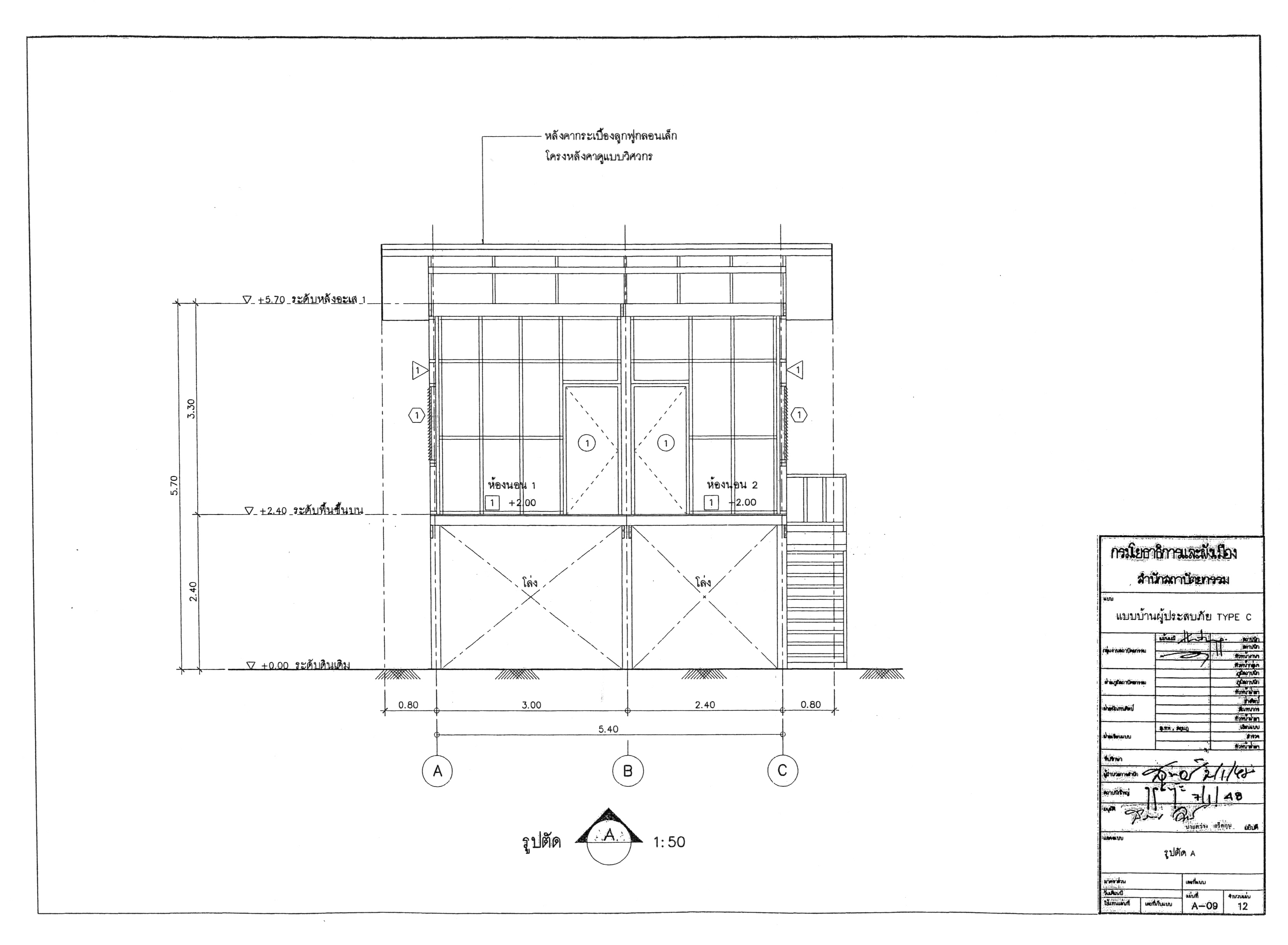
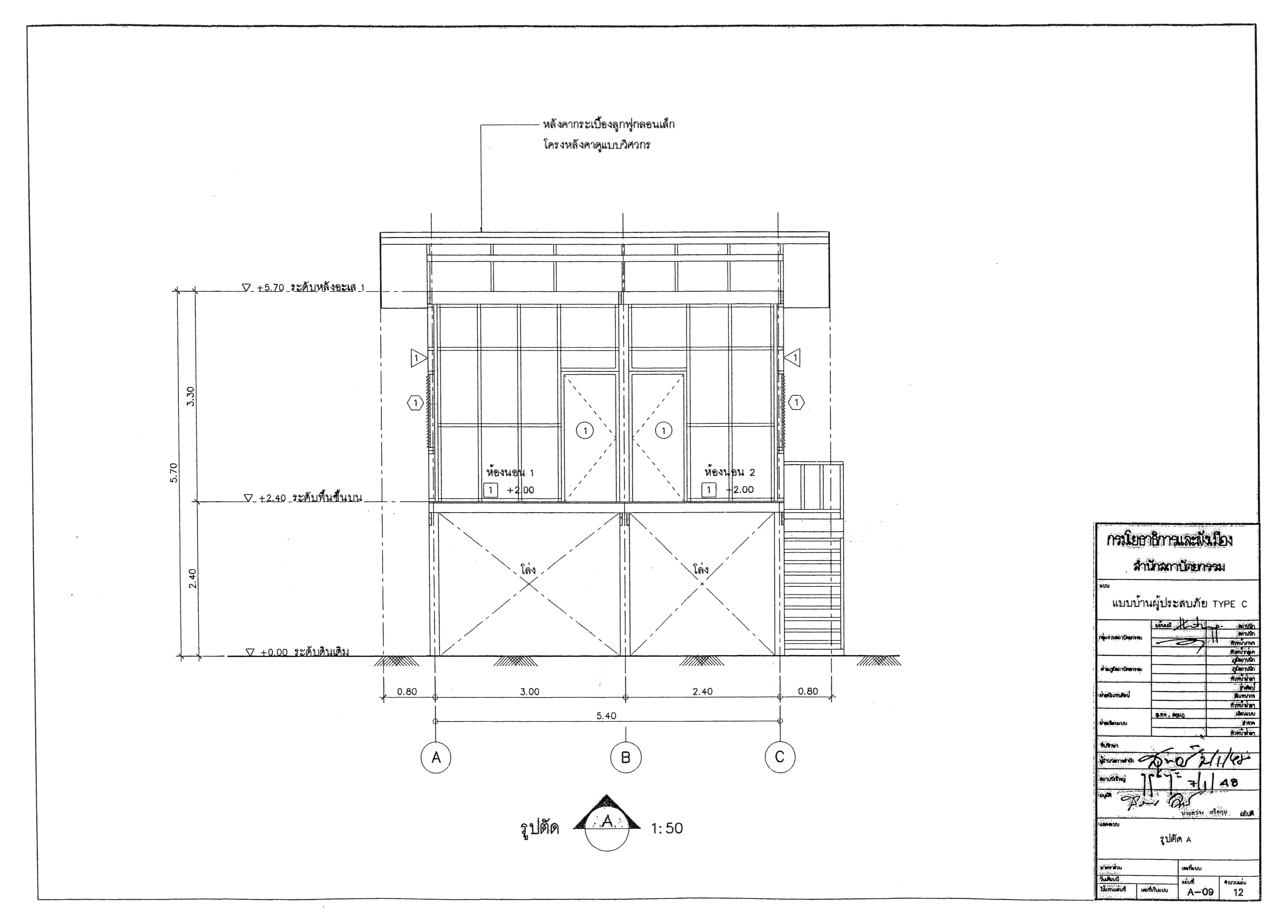
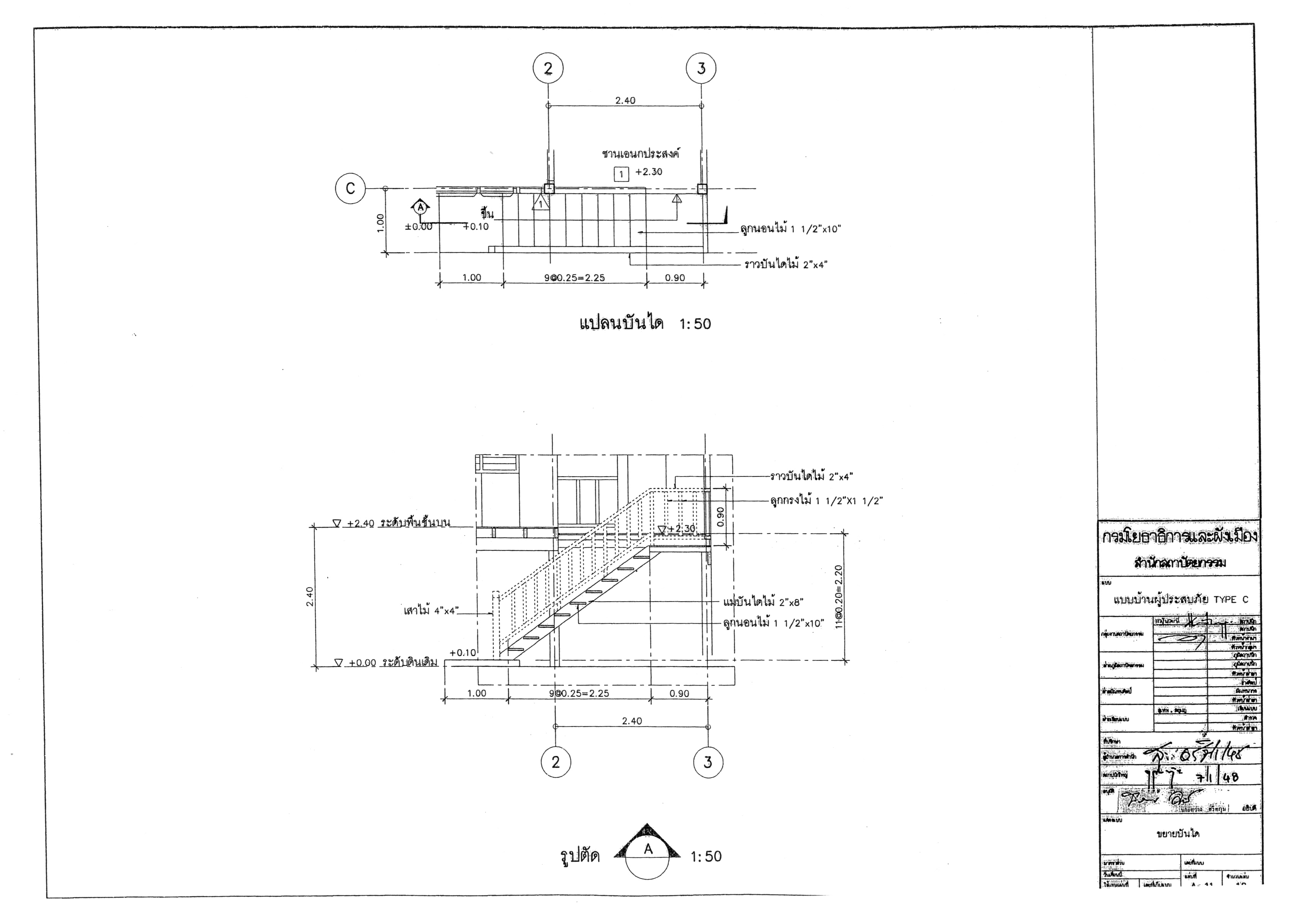
แบบบ้านผู้ประสบภัย Type C
ดูแล้ว (972)
พื้นที่ใช้สอย
32.36 ตร.ม.
จำนวนชั้น
0 ชั้น
ห้องนอน
0 ห้อง
ห้องน้ำ
0 ห้อง
ที่จอดรถ
0 คัน
ข้อมูลแบบแปลน
งบประมาณฐานรากแผ่ :0 บาท
งบประมาณตอกเสาเข็ม :195,416 บาท
คำอธิบาย
รายละเอียด : สองชั้นใต้ถุนโล่ง
ในการนำแบบนี้ไปก่อสร้าง ต้องยื่นขออนุญาตก่อสร้างต่อหน่วยงานท้องถิ่น ตามที่กำหนดไว้ในพระราชบัญญัติควบคุมอาคาร โดยการนำแบบไปปลูกสร้างในที่ดินแต่ละแปลงนั้น จะต้องไม่ขัดต่อกฎหมายควบคุมอาคารและกฎหมายอื่นๆ ที่เกี่ยวข้อง เช่น พรบ.การผังเมือง ข้อบัญญัติท้องถิ่น เป็นต้น โดยต้องจัดทำผังบริเวณ และเลือกแบบฐานรากให้เหมาะสมกับสภาพพื้นที่
หมายเหตุ: -











